Convention
révolution
Proche du métro, des commerces et du parc Georges Brassens...
68,95 m2 Carrez
3 Pièces · 2 chambres
5ème étage
577 000 € (honoraires inclus)
Villa Robert‑Lindet, un bel espace à repenser...
Paris 15e - Villa Robert Lindet Dans une copropriété bien entretenue et gardiennée, avec ascenseur, au 5e étage, ce charmant appartement de 69 m² à rénover, doté d’éléments de charme indéniables, se compose aujourd’hui d’une entrée, d’un séjour lumineux, d’une cuisine indépendante, de deux chambres, d’une salle de bains et de WC séparés.
Traversant, l’appartement offre de multiples possibilités d’aménagement, optimisant l’espace et pouvant s’adapter à de nombreux projets sans perdre le cachet du lieu.
À quelques pas du Parc Georges Brassens, des commerces, des écoles et du métro, la Villa Robert Lindet se présente comme un lieu de vie paisible aux coeur d'un agréable quartier.
DPE : D Cave très facilement accessible
Caractéristiques
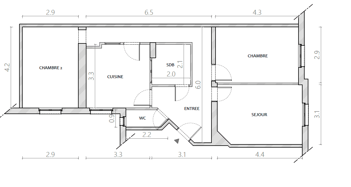
Plan général du bien

Ce plan a une valeur informative et indicative. Il a vocation à représenter le plus fidèlement possible le bien, mais ne doit pas être considéré comme un plan de géomètre ou d’architecte.
| Pièce | Surface | Exposition | Vue |
|---|---|---|---|
| Entrée | 14,38 m2 | ||
| Séjour | 13,31 m2 | ||
| Cuisine | 10,37 m2 | ||
| Chambre 1 | 12,86 m2 | ||
| Chambres 2 | 12,05 m2 | ||
| Salle de bain | 4,22 m2 | ||
| WC | 1,76 m2 | ||
| Cave | 5,12 m2 |
- Surface :
- Carrez : 68,95 m2
- Sol : 69,75 m2
- Cuisine :
- Indépendante
- Exposition :
- Traversant
- Luminosité :
- Très clair
- Vue :
- rue et parc
- Bruit :
- très calme
- Eau chaude :
- Collective
- Eau froide :
- Collective
- Chauffage :
- Collectif
- Type de chauffage :
- Radiateurs
- Taxe foncière :
- 1 320 €
- Caractéristiques :
- Parquet, cheminée et beaux détails
- État du bien :
- Appartement à rénover
Classe énergie :
(212 kilowattheures d’énergie primaire consommée par mettre carré et par an)
Classe climat :
(30 kilogrammes de dioxyde de carbone émis par mettre carré et par an)
Montant estimé des dépenses :
Pour un usage standard établi à partir des prix de l’énergie de l’année 2021, 2022, 2023 : entre 1 260 € et 1 720 €.
- Copropriété :
- Oui
- Gardien :
- Oui
- Ascenseur :
- Oui
- Local à vélos :
- Oui
- Charges :
- 3 380 € / an
- Nombre d'étages :
- 6
- Nombre de lots :
- 32
- Procédure en cours :
- non
- Année de construction :
- 1900
- État de l’immeuble :
- très bon
- Écoles à proximité :
- ECOLE MATERNELLE et PRIMAIRE OLIVIER DE SERRES : 190m. COLLEGE MODIGLIANI : 624m
- Transports :
- Métro ligne 12 à 370m.
Vous êtes intéressé·e par ce bien ? Visitons-le ensemble !
pariscabane OberkampfNicolas Savreux
01 70 22 47 85 · 06 67 00 70 11











