Etienne Marcel
Canopée
Un deux pièces confortable au cœur de Paris
4 054 m2 Carrez
2 Pièces · 1 chambre
4ème étage sans ascenseur
Vendu
Un deux pièces au calme
Etienne-Marcel
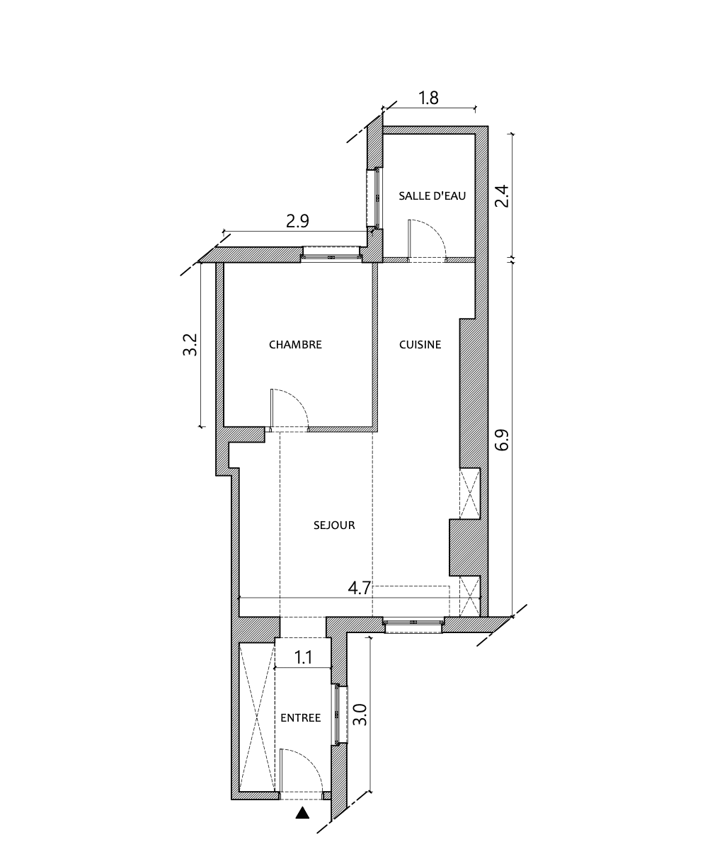
Très bel appartement traversant de 40,5m2 carrez. Situé au 4ème étage d'une copropriété bien entretenue, ce bien est composé d'une entrée avec rangements, d'une pièce de vie lumineuse avec cheminée, d'une cuisine entièrement équipée, d'une chambre et d'une salle d'eau avec toilettes
Entièrement sur cour Calme absolu.
Caractéristiques
Plan général du bien

Ce plan a une valeur informative et indicative. Il a vocation à représenter le plus fidèlement possible le bien, mais ne doit pas être considéré comme un plan de géomètre ou d’architecte.
- Surface :
 - Carrez : 4 054 m2
 - Cuisine :
 - Américaine équipée
 
- Exposition :
 - Est - Ouest
 - Luminosité :
 - Clair
 - Vue :
 - Sur cour
 - Bruit :
 - Calme
 
- Eau chaude :
 - Ballon électrique individuel
 - Eau froide :
 - Collective
 - Chauffage :
 - Individuel électrique
 - Type de chauffage :
 - Radiateurs
 
- Taxe foncière :
 - 737 €
 - Caractéristiques :
 - Cheminée, Digicode, Interphone.
 - État du bien :
 - Bon
 
Classe énergie :
(462 kilowattheures d’énergie primaire consommée par mettre carré et par an)
Classe climat :
(15 kilogrammes de dioxyde de carbone émis par mettre carré et par an)
Logement à consommation énergétique excessive : classe G
Montant estimé des dépenses :
Pour un usage standard établi à partir des prix de l’énergie de l’année 2021 : entre 1 181 € et 1 660 €.
- Copropriété :
 - Oui
 - Gardien :
 - Non
 - Ascenseur :
 - Non
 - Local à vélos :
 - Non
 
- Charges :
 - 1 160 € / an
 - Nombre d'étages :
 - 6
 - Nombre de lots :
 - 10
 
- Année de construction :
 - 1840
 - État de l’immeuble :
 - Bon état général
 
- Transports :
 - Métro L4 Etienne-Marcel à 130 mètres Métro L1 Les Halles et RER à 200 mètres
 
Ce bien a été vendu par l’agence pariscabane Oberkampf
pariscabane OberkampfNicolas Savreux
01 70 22 47 85 · 06 67 00 70 11












