Anvers
anthracite
rue du Delta. Un incroyable triplex famililal à l'esthétique industrielle.
113,45 m2 au sol
4 Pièces · 3 chambres
Rez-de-chaussée surélevé
1 010 000 € (honoraires inclus)
Un lieu insoupçonné...
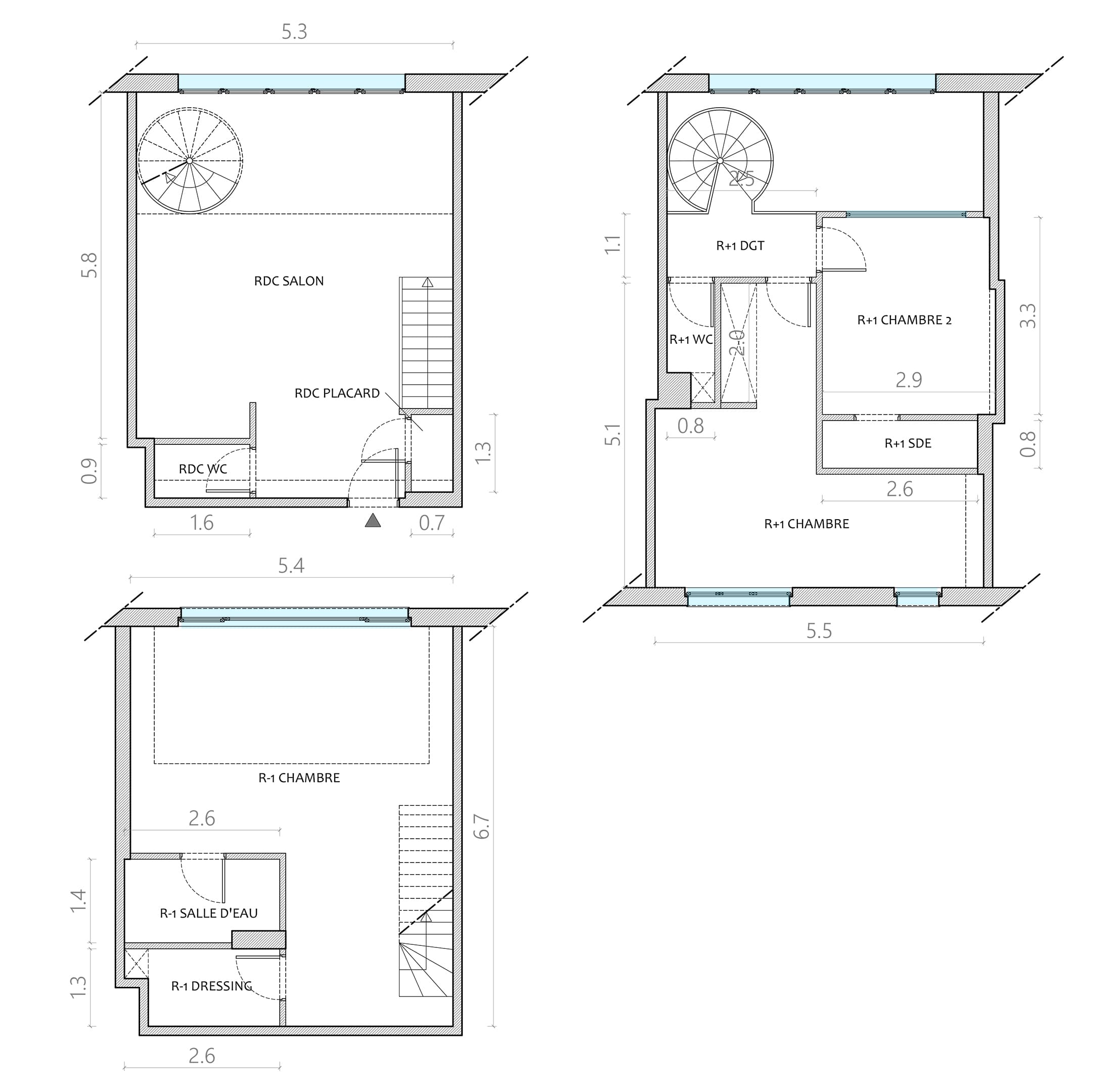
Dans un ancien immeuble industriel et commercial réhabilité, au rez-de-chaussée surélevé d'une petite copropriété entretenue, triplex familial de 97.41 mètres carrés carrez (113 m2 au sol).
Passé l'incroyable hall dont la rénovation a conservé des éléments historiques, cet appartement à l'esprit loft s'ouvre sur un grand espace de vie et sa cuisine ouverte et équipée. Les nuances de gris amènent une esthétique industrielle qui rappelle l'histoire du lieu, esthétique sublimée par une baie vitrée toute hauteur sur l'ensemble de façade apportant une luminosité douce et constante toute l'année.
L'escalier métallique en colimaçon mène au niveau supérieur occupé par deux chambres (dont une de plus de 16 m2) chacune disposant de sa propre salle d'eau et de rangements.
L'espace parental a été aménagé au niveau inférieur et bénéficie de la luminosité naturelle des fenêtres d'entresol, il est composé d'une vaste chambre avec rangements et bibliothèque, d'un dressing et d'une salle d'eau. Un accès depuis les parties communes a par ailleurs été conservé à ce niveau.
Toilettes à chaque niveau. Plan modulable.
Caractéristiques
Plan général du bien

Ce plan a une valeur informative et indicative. Il a vocation à représenter le plus fidèlement possible le bien, mais ne doit pas être considéré comme un plan de géomètre ou d’architecte.
| Pièce | Surface | Exposition | Vue | 
|---|---|---|---|
| R-1 : dressing | 3,04 m2 | ||
| R-1 - : salle d'eau | 3,42 m2 | ||
| RDC : salon avec cuisine | 33,07 m2 | nord | |
| RDC : toilettes séparées | 1,42 m2 | ||
| R+1 : toilettes séparées | 1,42 m2 | ||
| R+1 : chambre avec salle d'eau | 16,35 m2 | sud | |
| R+1 : chambre 2 | 9,4 m2 | sud | |
| R+1 : salle d'eau | 2,04 m2 | ||
| R-1 : chambre parentale | 28,97 m2 | nord | 
- Surface :
 - Carrez : 97,41 m2
 - Sol : 113,45 m2
 - Hauteur sous plafond :
 - 2,7 m
 - Cuisine :
 - Ouverte
 
- Exposition :
 - Nord
 - Luminosité :
 - Clair
 - Vue :
 - Citadine
 - Bruit :
 - Calme
 
- Eau chaude :
 - Individuelle
 - Eau froide :
 - Collective
 - Chauffage :
 - Individuel
 - Type de chauffage :
 - Radiateurs
 
- Taxe foncière :
 - 1 817 €
 - État du bien :
 - Bon état général
 
Classe énergie :
(380 kilowattheures d’énergie primaire consommée par mettre carré et par an)
Classe climat :
(12 kilogrammes de dioxyde de carbone émis par mettre carré et par an)
Logement à consommation énergétique excessive : classe F
Montant estimé des dépenses :
Pour un usage standard établi à partir des prix de l’énergie de l’année 2021, 2022, 2023 : entre 2 790 € et 3 810 €.
- Copropriété :
 - Oui
 - Gardien :
 - Non
 - Ascenseur :
 - Oui
 - Local à vélos :
 - Oui
 
- Charges :
 - 3 432 € / an
 - Nombre d'étages :
 - 2
 - Nombre de lots :
 - 23
 - Procédure en cours :
 - aucune
 
- Année de construction :
 - 1926
 - État de l’immeuble :
 - Bon état général
 
Vous êtes intéressé·e par ce bien ? Visitons-le ensemble !
pariscabane OberkampfMichael Corbier
01 70 22 47 85 · 06 73 53 34 09















